
Terracotta Breath House Đà Nẵng là một công trình tham khảo tiêu biểu mà Tổ Ấm Design chọn lọc dành cho những khách hàng yêu thích kiến trúc hiện đại – mộc mạc – khí hậu bền vững. Dù nằm trong con hẻm nhỏ của Đà Nẵng, căn nhà lại mang đến cảm giác thoáng đãng, bình yên nhờ triết lý “không gian thở” kết hợp giải pháp khí hậu thụ động và phong thủy Việt Nam.
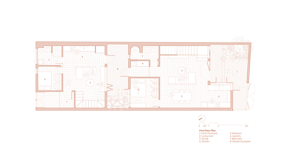
Công trình được thiết kế bởi live out studio, dành cho hai gia đình sống chung trên diện tích dài và hẹp 7×22 mét. Với tư duy tổ chức không gian thông minh, Terracotta Breath House tạo ra sự kết nối nhẹ nhàng giữa bố mẹ và con gái, đồng thời vẫn đảm bảo sự riêng tư cần thiết của hai thế hệ.

Ngôi nhà được chia thành hai khối: nhà bố mẹ phía trước và nhà của con gái phía sau, được nối với nhau bằng một khoảng sân xanh – “khoảng thở” chung. Sự phân chia rõ ràng nhưng liên kết khéo léo tạo nên cấu trúc sống vừa riêng tư vừa gắn kết, lý tưởng cho các gia đình Việt hiện nay.
Terracotta Breath House lựa chọn vật liệu gạch, tre, gỗ, mái tôn màu đất… tạo nên lớp vỏ (“skin”) giúp giảm nhiệt, lọc ánh sáng và mang lại cảm giác chan hòa với thiên nhiên.

Những chi tiết kiến trúc của Terracotta Breath House Đà Nẵng như gạch thông gió mở được, cửa xoay, lan can dây thừng đan tay… đều hướng đến mục tiêu tối ưu thông gió và ánh sáng tự nhiên. Không gian nhà luôn “thở”, luôn mát, giảm sự phụ thuộc vào thiết bị điện, phù hợp khí hậu nóng ẩm của Đà Nẵng.
Khu sân giữa đóng vai trò như giếng trời – mang ánh sáng, gió, cây xanh vào mọi góc nhà.

Nhà của bố mẹ được thiết kế mang hơi hướng truyền thống: phòng khách – bếp mở ra sân, cầu thang uyển chuyển, phòng thờ trang nghiêm và góc đọc sách tràn ánh sáng. Vật liệu mộc mạc mang lại cảm giác an yên và ấm cúng.
Nhà của con gái thì linh hoạt, trẻ trung và khéo léo tận dụng diện tích. Cửa xếp lớn mở ra sân làm cho không gian trở nên rộng rãi và sáng sủa hơn. Tầng lửng được dùng đa năng, còn các phòng ngủ được bố trí thông thoáng nhưng kín đáo.

Công trình Nhà phố Terracotta Breath House thể hiện một cách sống tinh tế: gần gũi thiên nhiên, tôn trọng truyền thống, hướng đến bền vững và cảm xúc gia đình. Đây là một trong những nguồn tư liệu kiến trúc quý giá mà Tổ Ấm Design muốn chia sẻ với khách hàng khi tìm kiếm giải pháp cho nhà phố Việt Nam hiện đại.
Khám phá thêm các dự án Nhà Phố của Tổ Ấm Design và liên hệ ngay để biến không gian sống của bạn thành nơi chữa lành cảm xúc.
®️ Toàn bộ ảnh và thông tin công trình được tham khảo từ nguồn Archdaily.com
®️ All images and project information are sourced from Archdaily.com
Nhập tên nội dung bạn muốn tìm