
Trong hành trình tìm kiếm những không gian sống “đúng chất” Tổ Ấm Design luôn chọn lọc những công trình tham khảo tinh tế, mang giá trị về kiến trúc, cảm xúc và triết lý sống. Nhà phố Anne House Hòa Quý – một thiết kế nổi bật của Econs Architecture – là minh chứng rõ ràng cho cách con người có thể sống hài hòa cùng khí hậu địa phương, ánh sáng và thiên nhiên. Đây là mẫu nhà phố 5x20m phổ biến tại Việt Nam, được xử lý cực kỳ thông minh để vừa thoáng khí, vừa giảm bức xạ nhiệt, vừa duy trì nguồn năng lượng tự nhiên xuyên suốt ngôi nhà.

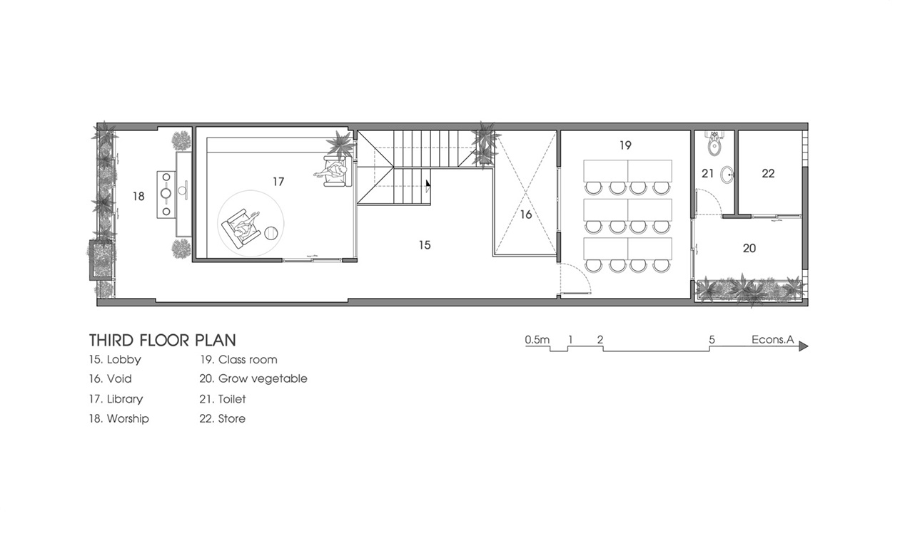
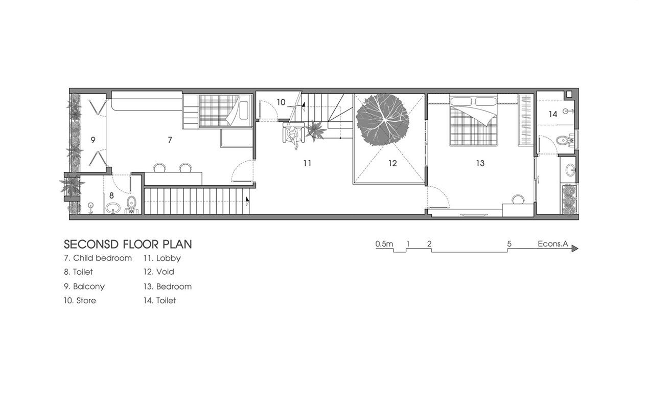
Điểm đặc biệt của Nhà phố Anne House Hòa Quý là việc sử dụng các “vùng đệm” xuyên suốt công trình. Vùng đệm bên ngoài giúp giảm nhiệt, vùng đệm bên trong tạo sự thông gió liên tục. Nhờ đó, ngôi nhà luôn duy trì cảm giác mát mẻ, dễ chịu như “lá phổi nhỏ” giữa lòng đô thị.
Các khoảng sàn mở liên tầng là giải pháp để ánh sáng gián tiếp lan tỏa dịu nhẹ, không hề gây nóng bức. Tổ Ấm Design đánh giá đây là yếu tố cực kỳ quan trọng cho những gia chủ đang tìm kiếm mẫu tham khảo nhà phố thông thoáng, tối ưu tự nhiên.

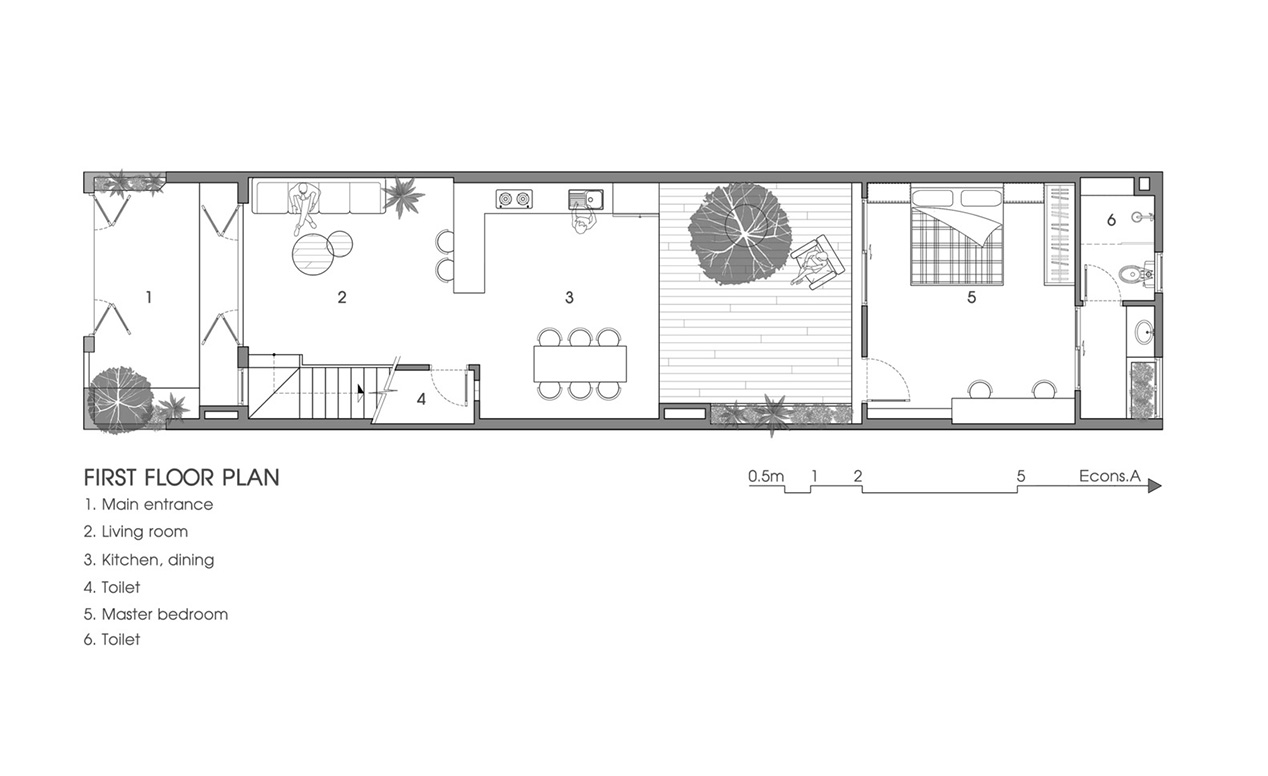
Chủ nhân của Anne House là một gia đình làm nghề giáo, mong muốn một không gian vừa phục vụ sinh hoạt, vừa hỗ trợ công việc. Thiết kế giảm thiểu chi tiết trang trí, chỉ giữ lại công năng cần thiết nhất. Nhờ thế, không gian trở nên nhẹ nhàng, dễ chịu và giàu tính ứng dụng.
Vật liệu chủ đạo mộc mạc, thân thiện với môi trường, kết hợp bảng màu trung tính mềm mại. Đây cũng là tinh thần thiết kế mà Tổ Ấm Design thường gợi ý cho khách hàng yêu thích phong cách sống “ít mà chất”, đề cao trải nghiệm cảm xúc.

Trong thiết kế này, cây xanh không chỉ là trang trí – mà chính là “điểm kết nối”. Nhờ mảng xanh được bố trí xuyên tầng, các thành viên trong gia đình có thể nhìn thấy nhau, giao tiếp và tương tác dễ dàng hơn.
Đây là triết lý mà Tổ Ấm Design rất coi trọng: kiến tạo không gian để chữa lành cảm xúc.

Dù không phải công trình do Tổ Ấm Design trực tiếp thi công, Nhà phố Anne House Hòa Quý vẫn là một mẫu tham khảo giá trị mà chúng tôi muốn giới thiệu đến các gia chủ đang tìm kiếm một ngôi nhà sáng – xanh – thoáng – đầy kết nối.
Hy vọng bài viết sẽ giúp bạn tìm thấy cảm hứng cho tổ ấm tương lai của mình.
Khám phá thêm các dự án Nhà Phố của Tổ Ấm Design và liên hệ ngay để biến không gian sống của bạn thành nơi chữa lành cảm xúc.
®️ Toàn bộ ảnh và thông tin công trình được tham khảo từ nguồn Archdaily.com
®️ All images and project information are sourced from Archdaily.com
Nhập tên nội dung bạn muốn tìm