
Nhà Phố D House Hà Nội là một công trình tiêu biểu do ARO Studio thiết kế, được Tổ Ấm Design lựa chọn làm tư liệu tham khảo dành cho khách hàng đang tìm kiếm mô hình nhà phố xanh, thông thoáng và giàu cảm hứng thiết kế. Đây không phải là dự án do Tổ Ấm Design thi công, nhưng được xem như một minh chứng rõ nét cho những giá trị sống hiện đại: bền vững – tự nhiên – gần gũi và giàu tính kết nối.
Công trình tọa lạc tại quận Hoàng Mai, Hà Nội, hoàn thành năm 2018 với diện tích 178m², sử dụng nhiều vật liệu địa phương, hướng đến việc giải quyết các vấn đề đô thị như ngột ngạt, thiếu ánh sáng, thiếu mảng xanh và mức sống ngày càng căng thẳng của các gia đình thành thị.

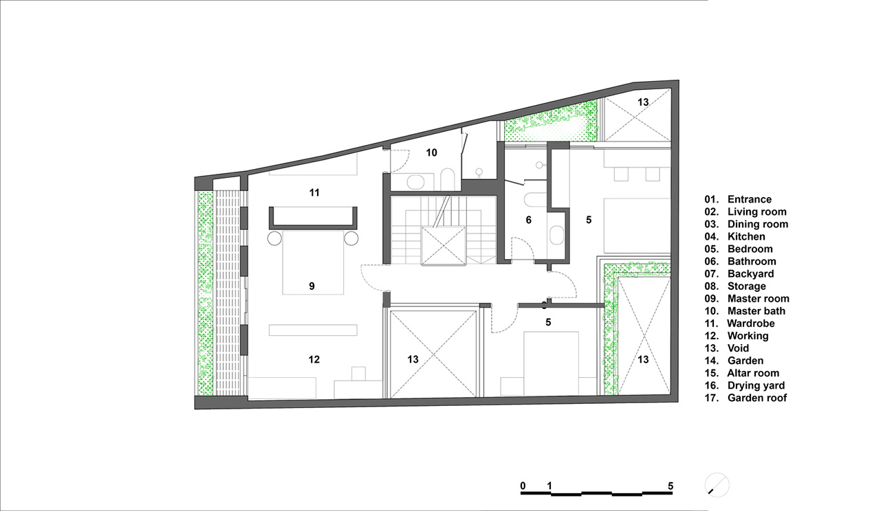
Một trong những điểm nổi bật của Nhà Phố D House Hà Nội nằm ở cách ARO Studio biến khu đất nhiều góc xiên thành lợi thế. Nhờ cách tổ chức mặt bằng khéo léo, mọi không gian chức năng đều đón được ánh sáng tự nhiên, gió trời và hướng nhìn xanh mát. Ba khoảng thông tầng xen kẽ giúp ngôi nhà luôn thoáng khí, hạn chế tối đa việc dùng điện năng, đặc biệt trong khí hậu miền Bắc.

Căn nhà được thiết kế cho ba thế hệ với nhu cầu sống khác nhau:
Nhà Phố D House Hà Nội giải quyết trọn vẹn bằng cách tổ chức không gian mở, kết nối trực quan giữa các tầng, tạo nên sự giao thoa tự nhiên trong sinh hoạt mỗi ngày.

Do nằm trong khu vực thấp, ngôi nhà thường xuyên đối mặt nguy cơ ngập trong mùa mưa. Kiến trúc sư đã chủ động nâng tầng một cao hơn mức nước lũ, vừa đảm bảo an toàn, vừa giúp kéo dài tuổi thọ công trình.
Trên mái nhà, khu vườn rau xanh vừa giúp chống nóng, vừa cung cấp nguồn thực phẩm sạch – giải pháp đáng giá giữa bối cảnh nguồn rau an toàn ngày càng trở nên lo ngại tại đô thị.

Công trình sử dụng các vật liệu như đá Granite Bình Định, gạch ốp từ Vietceramics, cùng hệ Nhôm Xingfa. Lớp tường đá granite xếp tầng mang hình ảnh núi đá tự nhiên – tạo điểm nhấn độc đáo, vừa mộc mạc vừa sang trọng, thể hiện tinh thần gắn kết thiên nhiên xuyên suốt của thiết kế.

Nhà Phố D House Hà Nội là ví dụ hoàn hảo cho những khách hàng đang tìm kiếm một mô hình nhà phố xanh, tiết kiệm năng lượng và tạo được sự kết nối giữa các thành viên trong gia đình. Công trình thể hiện rõ triết lý mà Tổ Ấm Design luôn theo đuổi: thiết kế phải phục vụ con người, cải thiện chất lượng sống, và tạo nên một không gian đáng sống cho hiện tại và tương lai.
Khám phá thêm các dự án Nhà Phố của Tổ Ấm Design và liên hệ ngay để biến không gian sống của bạn thành nơi chữa lành cảm xúc.
®️ Toàn bộ ảnh và thông tin công trình được tham khảo từ nguồn Archdaily.com
®️ All images and project information are sourced from Archdaily.com
Nhập tên nội dung bạn muốn tìm