
Trong bối cảnh đô thị Hà Nội ngày càng chật chội, căn hộ chung cư TAH Hà Nội mang đến một góc nhìn khác: thay vì mở rộng bằng diện tích, không gian được “nới rộng” bằng ánh sáng, cây xanh và sự kết nối tinh tế giữa trong – ngoài.
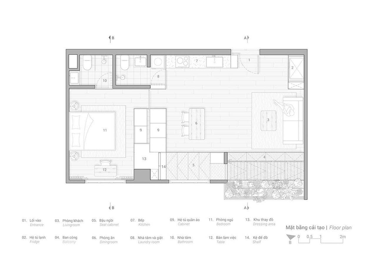
TAH là căn hộ chung cư có diện tích chỉ 62m², hiện trạng đã cũ, với mong muốn ban đầu của gia chủ là cải tạo đơn giản. Tuy nhiên, điểm đặc biệt nằm ở ban công tràn ngập cây xanh – một lợi thế hiếm có giữa lòng đô thị. Nhận thấy tiềm năng này, nhóm KTS đã đề xuất một phương án cải tạo triệt để hơn, biến ban công thành trung tâm trải nghiệm của toàn bộ căn hộ.

Thay vì giữ ranh giới cứng giữa phòng khách và ban công, căn hộ chung cư TAH Hà Nội được mở tối đa tầm nhìn ra mảng xanh bên ngoài. Ban công và phòng khách được kết nối bằng một bục ngồi thấp, vừa là chỗ thư giãn, vừa là điểm chuyển tiếp mềm mại giữa không gian trong nhà và khu vườn.
Tại các khu vực liền kề ban công, những ô cửa mở được bố trí khéo léo, giúp ánh sáng tự nhiên lan tỏa sâu vào bên trong. Nhờ đó, cây xanh, nắng gió và nhịp điệu thiên nhiên không chỉ dừng lại ở ban công, mà trở thành một phần của đời sống sinh hoạt hằng ngày.


Một điểm đáng chú ý trong căn hộ chung cư TAH Hà Nội là cách xử lý không gian bằng hệ tủ thay cho tường xây (ngoại trừ khu WC). Giải pháp này giúp:
Khu WC – vốn nằm ở vị trí bất lợi – được xử lý bằng tường tỉa thấp để lấy sáng, giảm cảm giác bí bách. Trần thạch cao và hệ đèn downlight cũng được tiết chế tối đa, chỉ bố trí đúng nơi – đúng chức năng, đúng cường độ cần thiết.

TAH không gây ấn tượng bằng trang trí cầu kỳ, mà bằng sự đồng nhất và tiết chế. Màu sắc trung tính, vật liệu giản dị được lựa chọn nhằm làm nền cho ánh sáng, cây xanh và đời sống diễn ra trong căn hộ. Khi các yếu tố thị giác được giản lược, không gian trở nên “dễ thở” hơn, cho phép cảm xúc và sự tĩnh tại xuất hiện một cách tự nhiên.

Tổ Ấm Design lựa chọn căn hộ chung cư TAH Hà Nội làm tư liệu tham khảo bởi dự án thể hiện rõ:
Đây là nguồn cảm hứng phù hợp cho những khách hàng đang tìm kiếm một không gian sống nhẹ nhàng, xanh mát và có chiều sâu trải nghiệm.
Nếu bạn đang tìm kiếm một tổ ấm nhỏ nhưng đủ yên, đủ xanh và đủ sâu sắc về trải nghiệm, hãy để Tổ Ấm Design đồng hành cùng bạn.
👉 Liên hệ Tổ Ấm Design để được tư vấn giải pháp thiết kế – thi công phù hợp với nhịp sống và cá tính riêng của bạn.
Khám phá thêm các dự án Chung Cư của Tổ Ấm Design và liên hệ ngay để biến không gian sống của bạn thành nơi chữa lành cảm xúc.
®️ Toàn bộ ảnh và thông tin công trình được tham khảo từ nguồn Kienviet.net
®️ All images and project information are sourced from Kienviet.net
Nhập tên nội dung bạn muốn tìm