
Giữa trung tâm Paris cổ kính, Place des États-Unis Residential Apartment Pháp hiện lên như một khoảng lặng tinh tế. Đây là dự án cải tạo căn hộ do SELA.ARCH thực hiện, được Tổ Ấm Design lựa chọn làm công trình tham khảo, bởi sự giao thoa hài hòa giữa kiến trúc Haussmann cổ điển và tinh thần sống đương đại, tĩnh tại – rất gần với DNA “Kiến tạo không gian, chữa lành cảm xúc”.
Thay vì tái hiện các chi tiết trang trí cổ điển, dự án Place des États-Unis Residential Apartment Pháp lựa chọn cách tiếp cận tiết chế: giữ lại tỷ lệ, nhịp điệu và cấu trúc không gian Haussmann, sau đó phủ lên một lớp ngôn ngữ thiết kế hiện đại, tĩnh lặng. Không gian không phô trương mà lắng đọng, tạo cảm giác an yên ngay khi bước vào.

Tinh thần Wabi-sabi/Japandi được thể hiện rõ nét qua vật liệu và bảng màu. Gỗ sồi sáng, đá travertine, vải dệt mềm và bề mặt khoáng chất mang sắc cát tự nhiên giúp ánh sáng lan tỏa dịu dàng. Các vật liệu được lựa chọn vì khả năng “già đi đẹp”, thay đổi theo thời gian – đúng tinh thần sống chậm và bền vững.

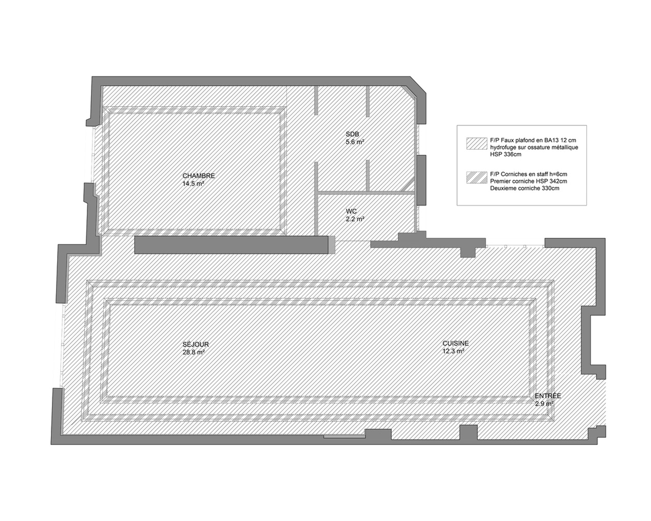
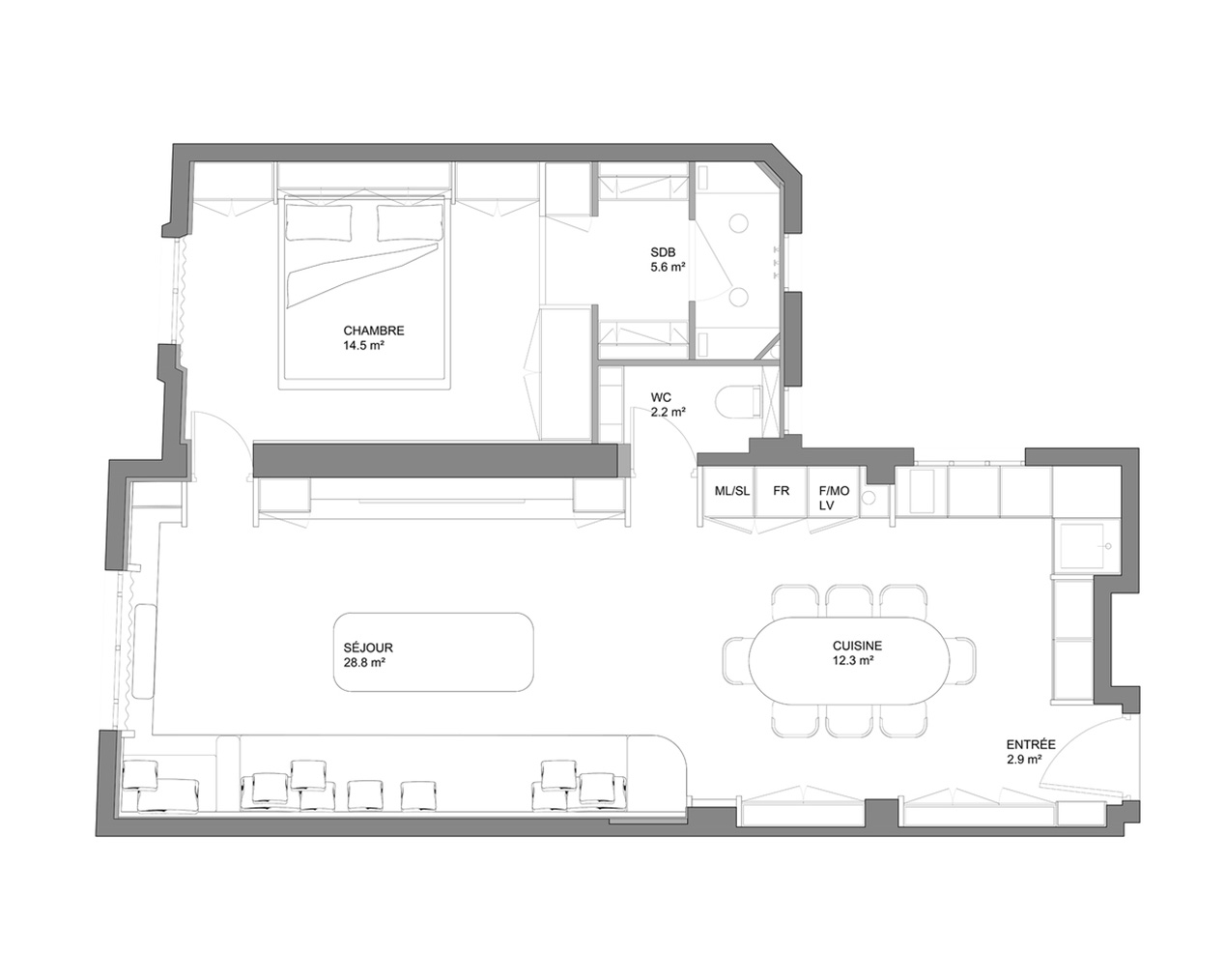
Mặt bằng căn hộ được tái cấu trúc để tạo dòng chảy liền mạch giữa các khu vực sinh hoạt. Trung tâm là không gian phòng khách với sofa liền khối thiết kế riêng, được kẹp giữa hai khối travertine – vừa là điểm nhấn thị giác, vừa là trục kết nối không gian. Hệ tủ và nội thất built-in được giấu khéo léo vào kiến trúc, giữ cho tổng thể luôn gọn gàng và tĩnh tại.

Ánh sáng tự nhiên được khai thác như một yếu tố kiến trúc, phản chiếu trên bề mặt đá, gỗ và sơn khoáng. Không gian được cảm nhận bằng xúc giác nhiều hơn thị giác: sự mịn của đá, ấm của gỗ, mềm của vải. Đây chính là điểm giao thoa tinh tế giữa thẩm mỹ Pháp và triết lý sống Á Đông.

Với những gia chủ yêu thích không gian sống tĩnh lặng, tối giản nhưng có chiều sâu cảm xúc, Place des États-Unis Residential Apartment Pháp là nguồn cảm hứng quý giá: cách cải tạo căn hộ cũ, cách dung hòa di sản kiến trúc với lối sống hiện đại, và cách để ngôi nhà trở thành nơi chữa lành thực sự.
Bạn đang tìm kiếm một không gian sống tinh giản, sâu sắc và bền vững?
👉 Liên hệ Tổ Ấm Design để cùng chúng tôi kiến tạo một tổ ấm mang dấu ấn cá nhân – nơi không gian thật sự chữa lành cảm xúc.
Khám phá thêm các dự án Chung Cư của Tổ Ấm Design và liên hệ ngay để biến không gian sống của bạn thành nơi chữa lành cảm xúc.
®️ Toàn bộ ảnh và thông tin công trình được tham khảo từ nguồn Archdaily.com
®️ All images and project information are sourced from Archdaily.com
Nhập tên nội dung bạn muốn tìm